Características
| Espesor de las paredes (mm) | 68 |
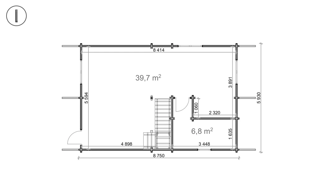
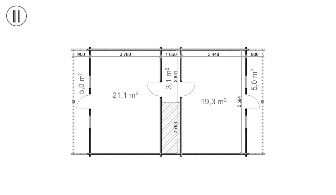
| Ancho (m) | 5.93 |
| Largo (m) | 8.75 |
| Superficie total construida (m²) | 51.88 |
| Superficie interior (habitable) (m²) | 90 |
| Área del techo (m2) | 80.2 |
| Voladizo del techo (m) | 1 |
| Base del techo |
Tablas de techo de 19mm con lengüeta y ranura
|
| Tablas del suelo machihembradas | 28 mm |
| Tipo de techo |
Techo a dos aguas
|
| Altura total (m) | 5.87 |
| Altura de la pared lateral (m) | 3.91 |
| Puertas | 6 |
| Medidas de la puerta (m) |
3 singles con vidrio al 50% de 1.98×0.85 m, 3 singles completos de madera de 1.98×0.85 m
|
| Ventanas | 8 |
| Medidas de la ventana (m) |
5 singles de 0.92×0.7 m, 3 dobles de 0.92×1.3 m
|
| Acristalamiento |
doble acristalamiento 4-16-4
|
| Contraventanas | No |
| Cerraduras de puertas |
Cerradura de cilindro con 2 llaves
|
| Número de estancias | 5 |
| Garantía (años) | 5 |
| Terraza | No |
| Número de plantas | 2 plantas |








