Características
| Espesor de las paredes (mm) | 58 |
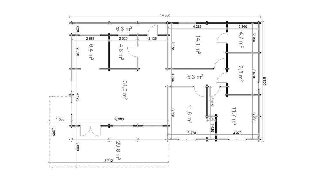
| Ancho (m) | 8.8 |
| Largo (m) | 14 |
| Superficie total construida (m²) | 123.2 |
| Superficie interior (habitable) (m²) | 99.5 |
| Área del techo (m2) | 123.2 |
| Voladizo del techo (m) | 0.3 |
| Base del techo |
Tablas de techo de 19mm con lengüeta y ranura
|
| Tablas del suelo machihembradas | 19 mm |
| Tipo de techo | Techo plano |
| Altura total (m) | 2.7 |
| Altura de la pared lateral (m) | 2.56 |
| Puertas | 8 |
| Medidas de la puerta (m) |
1 doble con vidrio al 100% de 1.98×1.6 m, 1 single con vidrio al 100% de 1.98×0.5 m, 6 singles completos de madera de 1.98×0.85 m
|
| Ventanas | 10 |
| Medidas de la ventana (m) |
1 single de 0.52×0.5 m, 1 single de 0.39×1.5 m, 3 singles de 1.98×0.85 m, 3 dobles de 1.43×1.3 m, 2 dobles de 1.98×1.5 m
|
| Acristalamiento |
doble acristalamiento 4-16-4
|
| Contraventanas | No |
| Cerraduras de puertas |
Cerradura de cilindro con 2 llaves
|
| Número de estancias | 9 |
| Garantía (años) | 5 |
| Terraza | Sí |
| Número de plantas | 1 planta |










