Description
Incluido en el paquete estándar:
-
Vigas del suelo, tablas del suelo y del techo, paredes, vigas del techo
-
Ventanas y puertas Premium Plus
-
Kit de aislamiento para el techo de 10 cm
-
Kit de aislamiento para el suelo de 10 cm
-
Kit de aislamiento para las paredes de 10 cm
-
Tejas de betún para el techo y capa base
-
Vierteaguas metálicos para las ventanas (exterior)
Opcionales y accesorios disponibles:
-
Impregnación (pino, blanco o transparente)
-
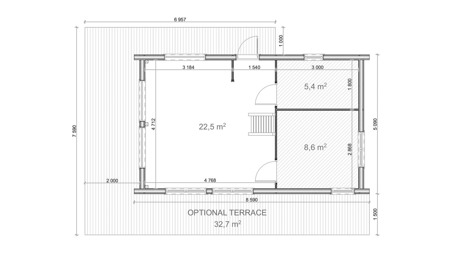
Terraza adicional
-
Pintura para ventanas y puertas
-
Mejora a ventanas y puertas a PVC (color blanco o antracita)
-
Paneles metálicos para el techo
-
Mejora del kit de aislamiento para techo o paredes a 20 cm
-
Placa de cimentación de madera adicional
-
Pintura de fábrica para las tablas del revestimiento (disponible en 6 colores)
-
Sistema de canalones de lluvia
-
Servicios de instalación + fontanería, electricidad o cimentaciones (precio bajo solicitud)





